When the situation gets tough, the secret to survival is moving forward and finding new solutions to stay afloat. Many of the shipyards that could afford to do so reacted to the recession by producing innovative designs in an attempt to re-ignite the interest of fewer available buyers.

Spanish boatbuilder Astondoa didn’t take this path. Instead, the family-owned Spanish shipyard, founded by Jesus Astondoa in 1916, stayed true to what has been a winning formula over the past decades. Astondoa, which has a diverse production, offers its clients a high level of customization, regardless of boat size. Since the entire construction process from hull lamination to interior decoration is executed in-house, the shipyard is able to produce highly customized yachts at competitive prices. Even so, anticipating a shift in the market, the shipyard’s management decided to revisit the American market where it sold boats in the past. A few months ago, the shipyard struck an agreement with Miami-based Flagship Marine Group to represent the brand stateside. Flagship’s owner Rafael Barca is confident that the brand will conquer this demanding market thanks to the builder’s extensive experience, its ability and willingness to adapt its models and its impressive set up.
We visited the shipyard a few months ago and were equally impressed. Astondoa’s production sites encompass a total of 754,000 square feet spread throughout Spain, from Santa Pola on the sunny Mediterranean coast (where their headquarters are located) to the windy town of Vigo in Galicia, on Spain’s Atlantic Coast. Perhaps the most remarkable of these facilities is Astondoa’s furniture factory in Almansa. The 150,000-square-foot modern plant is surrounded by the evocative landscapes of Castilla-La Mancha, a region immortalized in Miguel de Cervantes’ Don Quixote. Here, Astondoa builds all of its yachts’ interiors.
Astondoa has multiple models built in composite organized within three lines. The Open line features express cruisers ranging in size from 40 to 67 feet, with top speeds in the high-30s. Astondoa’s line of flybridge yachts ranges from 43 to 62 feet, and its GLX line (or motoryacht line) includes fully customized yachts from 66 to 126 feet. In addition, the shipyard offers a line of megayachts in steel and aluminum with pre-engineered platforms up to nearly 200 feet. The shipyard’s flagship so far is the 141-foot (43-meter) Samurai One, which was launched in Vigo in 2007.
In these pages we attempt to illustrate what customization really means at Astondoa by presenting two boats from two models in the GLX motoryacht series—the Astondoa 80 GLX and 122 GLX. The GLX series is comprised of flybridge models that combine generous interior spaces and sporty exterior lines. The styling and naval architecture are by Astondoa’s in-house design and technical departments, while the interior design is by Cristiano Gatto, an Italian designer who has demonstrated his ability and willingness to work in any style.
80 GLX: Two owners, two yachts

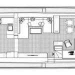
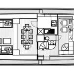
One has a contemporary, minimalistic interior in which wengé and white lacquered surfaces create a sophisticated atmosphere; the second is a triumph of refined glossy mahogany surfaces with detailed marquetry in all rooms, galley included.
The yachts may look very similar on the outside—with only a few minor stylistic changes, such as the size of the lower-deck portholes—but they feature very different layouts at the request of their owners.
The yacht with the more modern interior actually features a fairly classic layout. The large salon with ample seating is located near the main-deck entrance; next comes the dining area and an enclosed galley, which is usually preferred by European owners, and the forward helm station. The second hull, though much more classical in design, departs from the usual layout on a yacht of this size. It features an alfresco dining area on the main deck aft, which is connected to a large starboard open galley, in a style more favored on this side of the Atlantic. Opening onto the large salon, it is an integral part of the social life on board. On the lower deck, both hulls have an owner’s stateroom amidships, two twins and a forward VIP cabin, but the configuration of the staterooms, including the placement of stairs, storage and bathrooms, is totally different. On the technical side, both 80 GLX hulls feature similar equipment and performance capabilities. Thanks to a planing V-shape hull with 14-degree deadrise and twin 1,550hp 12V MAN engines, the boats reach a top speed of 33 knots and a cruising speed of about 25 knots. Other engine configurations are available upon request.
122 GLX and 122.3 GLX: an extra room at the top

At the top end of the motoryacht range is the 122 GLX. Or, rather we should say there was the 122 GLX because two new models, based on the same hull mold, will be soon replace the line’s current flagship.
What makes the comparison of these two hulls particularly interesting is that one—the 122.3 GLX—was actually extended to accommodate the owner’s request to add a half deck on top of the superstructure to create a panoramic owner’s stateroom. Adding a deck to an existing structure is not child’s play. It involves careful recalculation of weight distribution and skillful design amendments to retain pleasing proportions on the modified profile. Astondoa succeeded on both counts. These two closely related hulls, viewed side by side, appear to be fully custom projects.
The shipyard recently presented two newer versions of the 122 GLX and 122.3 GLX. The resulting new 124 GLX and 126 GLX models represent a change in the range’s family feel thanks to significant restyling. The usually sinuous curves were replaced by straight lines that give the exterior profile a more aggressive look.
The 126 GLX layout will have the same configuration as the 122.3 GLX with a magnificent owner’s stateroom on the upper deck and four guest cabins on the lower deck.
With twin MTU 12V 4000 M94 and a semi-planing hull, these hulls will reach a maximum speed of about 24 knots. With all technical equipment and layout plans, Astondoa is ready, as always, to modify its designs at the owner’s request.
Flagship Marine Group will be present at the upcoming Fort Lauderdale International Boat Show and plans to debut a model at the Yacht & Brokerage Show in Miami in February 2013.
For more information in the US, visit flagshipmarinegroup.com or astondoa-yacht.com.































